Building in Dreta de l'Eixample
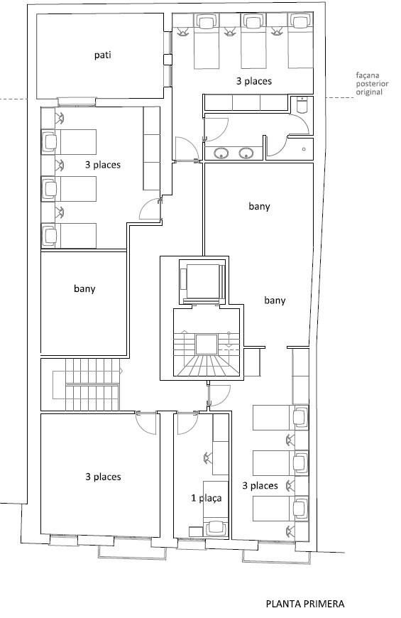
Edificio singular tipo palacete Modernista del siglo XIX (año 1878) en Les Corts Diagonal, reformado íntegramente en su planta 1a actualmente como vivienda de diseño con amplia terraza, cuenta además con 2 locales vacíos a reformar y una azotea con derecho a vuelo. Doble fachada con vistas a Diagonal -L´Illa. Perfecto como edificio comercial, incluso restauración, e ideal como edificio corporativo o de oficinas - Superficie total construida: 419m2 (237m2 planta baja, 144m2 planta 1 y 38m2 planta 2, según catastro). - Superficie de la parcela: 259m2. - Altura: PB+2PP. - Propiedad Vertical. - Composición actual: 2 locales vacíos a reformar de 237m2 y el resto de superficie por 1 vivienda singular con cédula de habitabilidad y amplia y soleada terraza con vistas, además de terraza en cubierta planta 2 con derecho a vuelo. Todas las plantas están conectadas por escalera interior. Posibilidad de instalar Ascensor y Salida de Humos. Destaca la altura de los techos.- Finca catalogada en Nivel D de protección.- Usos admitidos: Corporativo oficinas, Comercial , Sanitario, Recreativo, Deportivo, Religioso y Cultural, - Construido en el año 1879, si bien fue íntegramente reformada su primera planta recientemente. - En muy buen estado. - Planos disponibles. - Localización: Singular Edificio ubicado en la zona alta de Les Corts, en una calle peatonal al lado de la Avenida Diagonal y del Centro comercial L’lla y cerca también de El Corte Inglés Diagonal, en tramo comercial y residencial, bien comunicada con transporte público y parking público cercano. - Precio de Venta: 6.500.000€ - Para información adicional y sobre honorarios de Agencia , consultar proceso de compraventa sujeto a Confidencialidad. ** English: Unique Modernist-style mansion from the 19th century (1878) in Les Corts Diagonal, completely renovated on the first floor, currently a designer apartment with a large terrace. It also includes two vacant commercial spaces to be renovated and a rooftop terrace with air rights. Double façade with views of Diagonal and L'Illa. Perfect as a commercial building, even a restaurant, and ideal as a corporate or office building. - Total built area: 419m2 (237m2 ground floor, 144m2 first floor, and 38m2 second floor, according to the land registry). - Plot area: 259m2. - Height: Ground floor + 2 upper floors. - Vertical ownership. - Current layout: Two vacant commercial spaces to be renovated (237m2 total) and the remaining area comprises a unique apartment with a certificate of occupancy and a large, sunny terrace with views, plus a rooftop terrace on the second floor with air rights. All floors are connected by an interior staircase. Elevator installation is possible. The high ceilings are a notable feature. - The building is listed as a Level D protected property. - Permitted uses: Corporate offices, Commercial, Healthcare, Recreational, Sports, Religious, and Cultural. - Built in 1879, although the first floor was recently and completely renovated. - In very good condition. - Floor plans available. - Location: A unique building located in the upper part of Les Corts, on a pedestrian street next to Avenida Diagonal and the L'Illa shopping center, and also near El Corte Inglés Diagonal, in a mixed commercial and residential area, well-connected by public transport and with nearby public parking. - Sale Price: €6,500,000 - For additional information and agency fees, please consult the confidentiality agreement for the purchase process. *** Català: Edifici singular tipus palauet Modernista del segle XIX (any 1878) a Les Corts Diagonal, reformat íntegrament a la seva planta 1a actualment com a habitatge de disseny amb àmplia terrassa, compta a més amb 2 locals buits a reformar i un terrat amb dret a vol. Façana doble amb vistes a Diagonal -L´Illa. Perfecte com a edifici comercial, fins i tot restauració, i ideal com a edifici corporatiu o d'oficines - Superfície total construïda: 419m2 (237m2 planta baixa, 144m2 planta 1 i 38m2 planta 2, segons cadastre). - Superfície de la parcel·la: 259m2. - Alçada: PB+2PP. - Propietat Vertical. - Composició actual: 2 locals buits a reformar de 237m2 i la resta de superfície per 1 habitatge singular amb cèdula d'habitabilitat i àmplia i assolellada terrassa amb vistes, a més de terrassa a coberta planta 2 amb dret a vol.Totes les plantes estan connectades per escala interior. Possibilitat d´instal·lar ascensor.Destaca l'alçada dels sostres.- Finca catalogada en Nivell D de protecció.- Usos admesos: Corporatiu oficines, Comercial, Sanitari, Recreatiu, Esportiu, Religiós i Cultural, - Construït a l'any 1879, si bé va ser íntegrament reformada la seva primera planta recentment. - En molt bon estat. - Plànols disponibles. - Localització: Singular Edifici ubicat a la zona alta de les Corts, en un carrer de vianants al costat de l'Avinguda Diagonal i del Centre comercial L'lla ia prop també d'El Corte Inglés Diagonal, en tram comercial i residencial, ben comunicada amb transpo
- 650 m²