Duplex of 166 m² in Tarifa ciudad
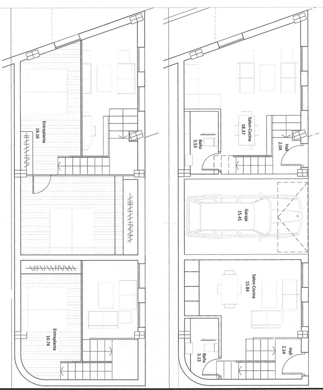
TARIFA.COM presenta este luminoso dúplex con vistas al mar, ubicado en una cuidada urbanización con jardines y piscina. La vivienda, con una superficie total de 166 m², se distribuye de forma cómoda y funcional entre planta semisótano, planta baja y primera planta, ofreciendo espacios amplios y bien aprovechados. En la planta semisótano se encuentra un amplio trastero, con acceso directo a la plaza de garaje numerada. Desde esta planta se puede acceder cómodamente a las zonas comunes de la urbanización, que cuentan con agradables jardines y una piscina, ideales para disfrutar durante todo el año. La planta baja alberga la zona de día, compuesta por un luminoso salón-comedor, un aseo de cortesía y una cocina amplia y totalmente equipada. La cocina se comunica con un patio interior donde se sitúa el lavadero y la zona de tendedero, aportando funcionalidad y ventilación. En esta misma planta, la vivienda dispone además de una terraza cerrada y acristalada, un espacio protegido del viento y del frío, perfecto para disfrutar de las puestas de sol incluso en los meses de invierno. En la primera planta se distribuye la zona de descanso, con tres dormitorios. Dos de ellos comparten un cuarto de baño completo, mientras que el dormitorio principal cuenta con su propio baño en suite, aportando mayor privacidad y comodidad. Una vivienda luminosa, bien distribuida y situada en una zona muy demandada, a pocos minutos del mar, ideal tanto como residencia habitual como para disfrutar de Tarifa en cualquier época del año. Superficies: Planta baja: 62 m² Primera planta: 58 m² Patio-lavadero: 9 m² Trastero: 16 m² Plaza de garaje: 12 m² ¿Necesita más información? Llame o envíe un mensaje de WhatsApp al +34 600 99 22 22 y estaremos encantados de ayudarle. En Tarifa.com trabajamos para ofrecer a nuestros clientes los mejores inmuebles desde hace más de 20 años. Disponemos de un equipo especializado al servicio de clientes nacionales e internacionales, ofrecemos asesoramiento necesario para garantizar su compra de forma segura y eficaz teniendo en cuenta la mejor rentabilidad. [IW]
- 3 rooms·
- 2 bath·
- 166 m²·
- Terrace