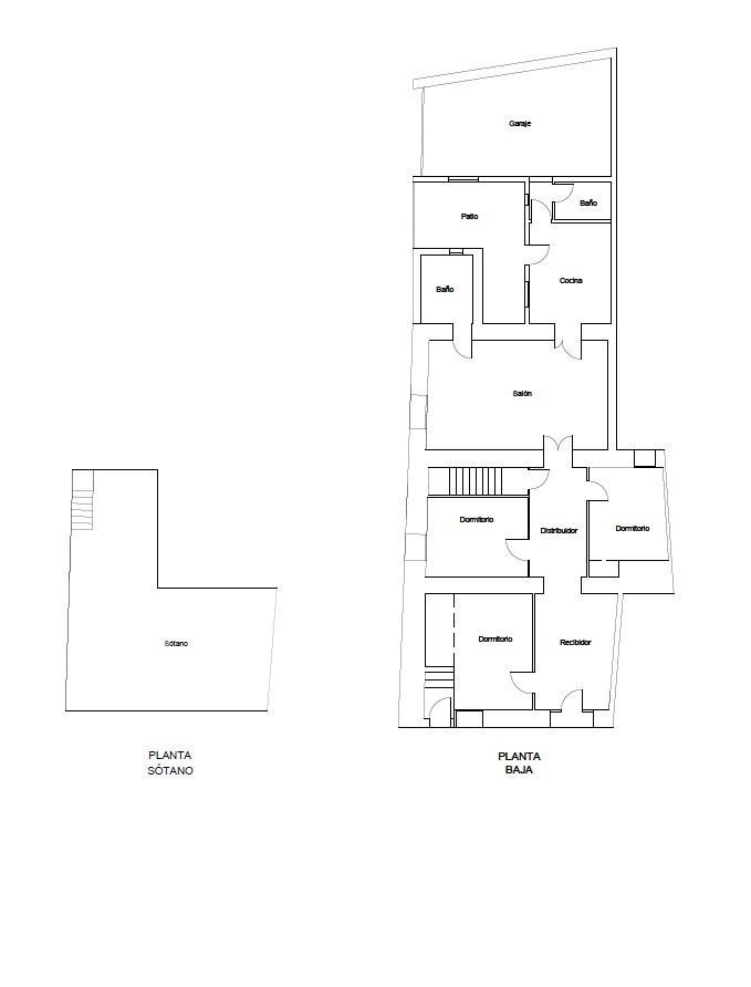
Planta baja in Carrer VICTORIA, Algaida
ALGAIDA PUEBLO - CALLE VICTORIA. Se vende PLANTA BAJA NO TECHO LIBRE, ubicada sólo 20 km de Palma por autovía y en pleno corazón del pueblo, su plaza y su iglesia. Consta de 3 habitaciones dobles, 2 baños completos, cocina amueblada e independiente y salón comedor con aire acondicionado frío- calor. Desde el interior de la vivienda tenemos acceso a un patio interior y al garaje privado. La vivienda se complementa con un amplio sótano. Entre otras calidades, destacamos que la planta baja dispone de suelos de gres, termo de butano, 2 armarios empotrados, carpintería interior de madera y exterior de PVC con climalit. Contadores de suministros individuales. Precio: 385.000 Euros. 📞 Contáctanos en Inmogestión Balear Telf.: 971 666 527 para más información o para concertar una visita sin compromiso.
- 3 rooms·
- 2 bath·
- 243 m²·
- ground