Flat with terrace in Alboraya Centro
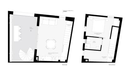
Rehabilitación de vivienda en alboraya en Alboraya. Se trata de 1 DUPLEX 60m2 con 2 terrazas (1 en planta baja , otra en última y tercera planta. La vivienda tienen 1 habitación doble , un estudio , 2 baños (1 baño completo y un aseo) . Varias opciones a elegir en los materiales de baños, suelo, cocina..... PLAZO DE EJECUCIÓN EN UN 1 AÑO. FORMA DE PAGO:10 por cien a la firma del contrato de arras y un 5% a los 3 meses de la firma, todas las cantidades avaladas por banco. La vivienda se encuentra en una moderna rehabilitación en el edificio de Pintor Peris Aragó ,esquina con Botánico Cabanilles, muy cerca tanto de la parada de metro de Peris Aragó, cómo la de Palmaret, Ausias March (calle comercial por excelencia) , Consum , Mercadona, farmacias, restaurantes, Centros de salud, Centros educativos, gimnasios....servicios : correos , bancos .... Servicio público: autobús , metro , taxi... Agencia Registrada con el Nº 0534 en el Registro Obligatorio de Agentes Inmobiliarios de la Comunitat Valenciana, según el DECRETO 98/2022, de 29 de julio, del Consell, por el que se regula el Registro de Agentes de Intermediación Inmobiliaria de la Comunitat Valenciana. La documentación del inmueble ha sido revisada y estimamos que reúne todos los requisitos necesarios para ser comercializado. El precio ofertado no incluye impuestos, gastos de compraventa ni honorarios de la agencia inmobiliaria. Las medidas aquí expuestas han sido obtenidas del Catastro. El anuncio no es vinculante, puede contener errores
- 2 rooms ·
- 1 bath ·
- 80 m² ·
- ground
