Box room in Carrer de Cantàbria, 14, Bufalà
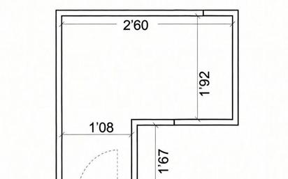
Se alquila trastero exterior amplio y muy bien aprovechado de aproximadamente 7 m² útiles (medidas interiores reales: 2,60 m de largo × 1,92 m de fondo en la zona principal + entrada de 1,08 m × 1,67 m). Características principales: • Altura libre interior cómoda (2,20m) • Forma en L que permite muy buen aprovechamiento del espacio • Suelo de hormigón liso • Puerta metálica robusta con cerradura • Acceso fácil y directo desde la calle • Iluminación eléctrica • Comunidad tranquila y bien cuidada • Zona muy demandada Perfecto para: • Guardar mobiliario, electrodomésticos, ropa de temporada • Material deportivo (bicis, esquís, tablas de surf…) • Stock de pequeños negocios, e-commerce, herramientas • Mudanzas temporales o exceso de pertenencias.
- 10 m²