Single-family semi-detached in Calle Diamante, 12, Riviera del Sol
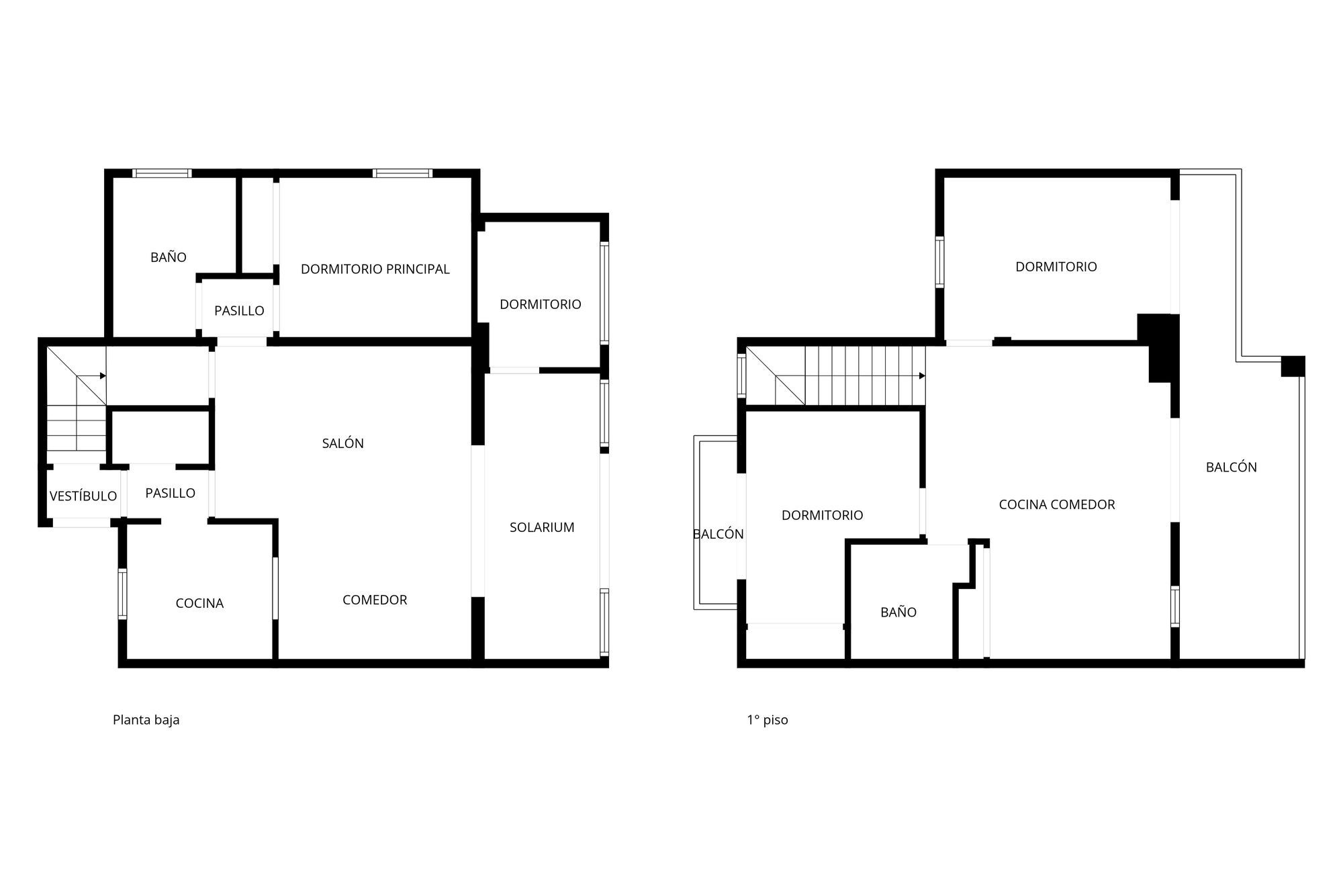
Esta vivienda se encuentra en la Urbanización Riviera Del Sol que cuenta con amplios campos de golf y todo tipo de servicios desde centros comerciales, a restaurantes, tiendas, y farmacias., gimnasios etc. La vivienda se distribuye en cuatro plantas y se encuentra en buen estado, cuenta con cuatro habitaciones, tres de ellas con baño en suite y vestidor , dos salones, uno de ellos con chimenea, dos terrazas amplias, solárium, jardín privado, cuenta además con una gran cocina independiente totalmente equipada y un garaje privado , la urbanización disfruta de una gran piscina comunitaria. INMUEBLES EN PERIODO DE PUJAS HASTA EL 26/01/2026, SE LE ADJUDICARA AL MAYOR POSTOR SIENDO SU PRECIO DE SALIDA EL INDICADO DE 475000€.- Solicite información y uno de nuestros asesores le acompañará y orientará de forma gratuita en todo el proceso de compra, Les informamos que se encuentran ya incluidos en el precio de venta nuestros honorarios de agencia, por lo cual no debe abonar ningún tipo de gasto por gestión ni asesoramiento inmobiliario. Y que en cumplimiento del Decreto de la Junta de Andalucía 218/2005 del 11 de Octubre, se informa que los gastos de notario, registro, ITP y otros gastos inherentes a la compraventa no están incluidos en el precio.
- 4 rooms·
- 4 bath·
- 425 m²·
- Parking
